Never
Stor oppstuguhytte med kraft, eleganse og plass til hele familien.
Et ekte flaggskip – bygget for generasjoner.
Noen hytter er store.
Andre er store på riktig måte.
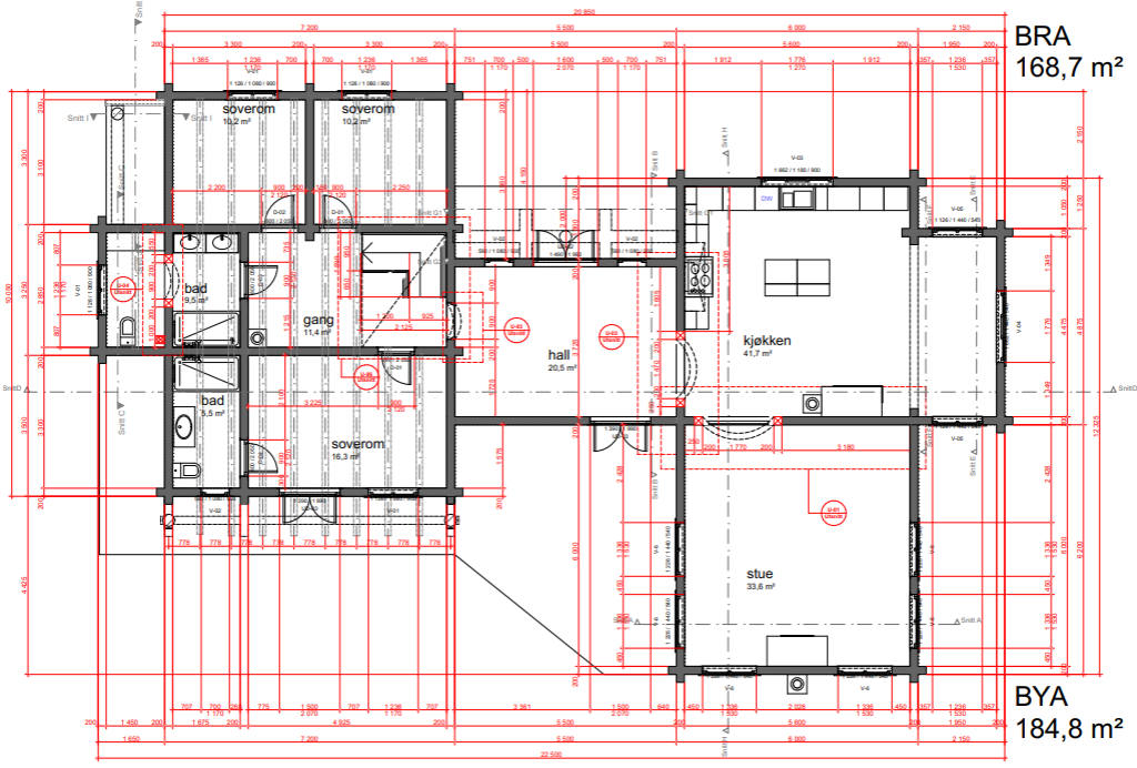
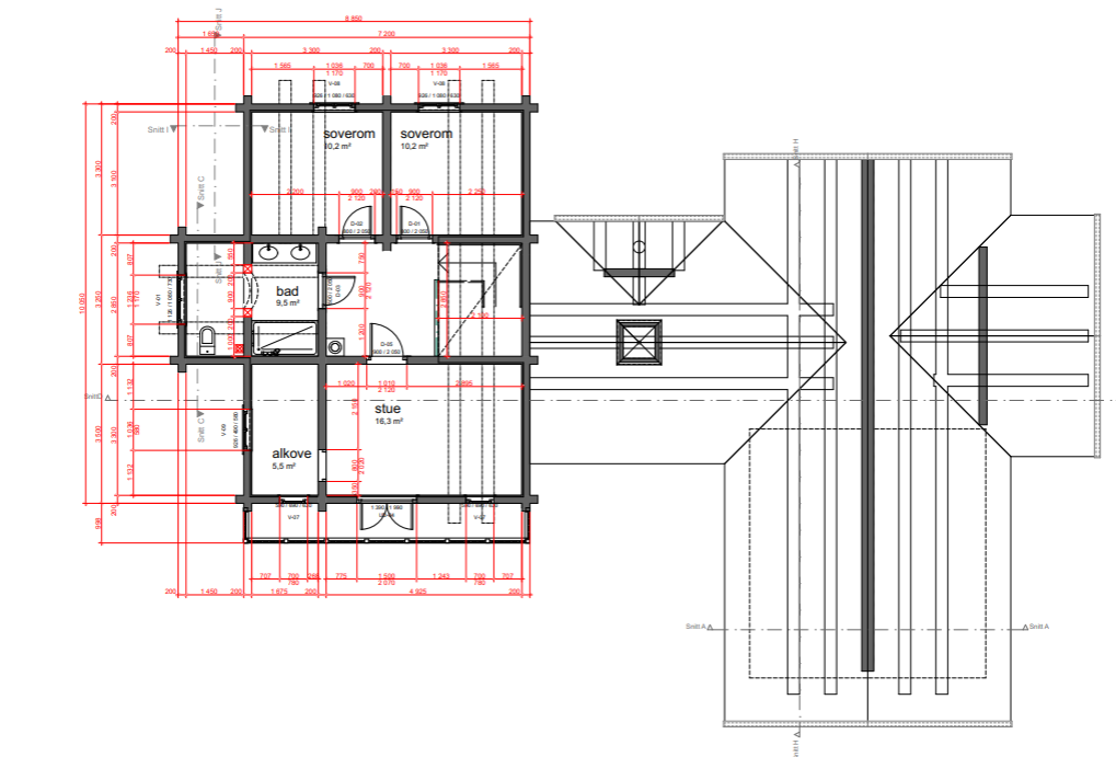
Never er en oppstuguhytte med kraftfull arkitektur, solide materialer og romslige løsninger. Med over 300 m² fordelt på kjeller, hovedplan og oppstugu får du en hytte hvor både familieliv, gjester og gode opplevelser får plass – uten kompromisser.
Dette er hytta for deg som ønsker noe helt spesielt.
Allerede når du nærmer deg hytta forstår du at Never er noe utenom det vanlige. Den klassiske oppstuguformen gir et kraftfullt uttrykk, samtidig som de ulike bygningsvolumene skaper en lun og harmonisk helhet i landskapet.
Du går inn i en romslig entré hvor materialene setter tonen: ekte tømmer, solide overflater og detaljer som gir følelsen av kvalitet fra første steg. Videre åpner hytta seg opp mot de store oppholdsrommene hvor kjøkken, spiseplass og stue flyter naturlig sammen.
De store vinduene slipper naturen inn og gir en utsikt som blir en del av interiøret. Peisen danner et naturlig samlingspunkt – et sted hvor både hverdager og lange hyttekvelder får sin egen ro.
Kjøkkenet er planlagt for både hverdag og fest. Her er det god plass til lange middager, gode samtaler og store samlinger rundt bordet.
Oppstuguen gir hytta karakter og ekstra rom for både gjester, familie og rolige soner. Samtidig gir den fullverdige kjelleren enorme muligheter – enten du ønsker flere soverom, aktivitetsrom, vinkjeller, spa eller praktiske løsninger for et aktivt hytteliv.
Never er rett og slett en hytte som rommer hele livet på fjellet.
Her er det plass til barna, barnebarna, venner og lange helger hvor ingen trenger å dra hjem for tidlig.
Velkommen.
Soverom: 6
Bad: 3




